±¾´¦Ìṩ£º¸ÉÓÍÈ󻬱ᢸÉÓÍ·ÖÅäÆ÷¡¢¸ÉÓÍÅä¼þ¡¢Ï¡ÓÍÈ󻬡¢ÓÍÆøÈ󻬡¢ÒºÑ¹×°Öá¢Â·½ÓͷĿ¼¡¢µçÆø¿ØÖÆ¡¢¸ßѹÓͱÃ
Ö§¸¶·½Ê½©¦E-MAIL©¦ÊÕ²ØÎÒÕ¾
Email:cadlijh@yahoo.com.cn
»ª¹¤Ê×Ò³ »ª¹¤½éÉÜ Í¼Ö½Ä¿Â¼ »úеÉ豸 Èó»¬É豸 ÓÐÏÞÔª·ÖÎö ͼֽÏÂÔØ Ö§¸¶·½Ê½ ÁªÏµ·½Ê½
Æô¶«»ª¹¤»úе¼¼ÊõÓÐÏÞ¹«Ë¾  Tel:0513-83902929  Fax:0513-83902928   Mobel:£¨0£©13862898483¡¢£¨0£©13301462665
  ¸ÉÓÍÈ󻬱ÃĿ¼ | ¸ÉÓÍ·ÖÅäÆ÷Ŀ¼ | ¸ÉÓÍÅä¼þĿ¼ | Ï¡ÓÍÈó»¬Ä¿Â¼ | ÓÍÆøÈó»¬Ä¿Â¼ | ÒºÑ¹×°ÖÃĿ¼ | ¹Ü·½ÓͷĿ¼ | µçÆø¿ØÖÆÄ¿Â¼ | ¸ßѹÓͱÃĿ¼
    Í¼Ö½·ÖÀà
  ÊäËÍÉ豸ͼֽ   ¼õËÙ»úеͼֽ
  ÌáÉýÉ豸ͼֽ   ½¨Öþ»úеͼֽ
  ÆðÖØÉ豸ͼֽ   ·ÛÄ¥É豸ͼֽ
  ¸øÁÏÉ豸ͼֽ   ±Ã·§É豸ͼֽ
  ÆÆËé»úеͼֽ   »·±£É豸ͼֽ
  É¸·ÖÉ豸ͼֽ   Èó»¬É豸ͼֽ
  Í¨·çÉ豸ͼֽ   ´¬²°»úеͼֽ
  ³ý³¾É豸ͼֽ   »ú´²¼Ó¹¤Í¼Ö½
  ¿óɽ»úеͼֽ   ÆäËû»úеͼֽ
    ÔÞÖúÉÌÍÆ¼ö
CAD»úеͼֽÌÔ±¦½»Ò׸ü°²È«£¡
    ¸ÉÓÍ·ÖÅäÆ÷Àà²úƷĿ¼
    XHZÐÍÏ¡ÓÍÈó»¬×°ÖÃ
    XYHZÐÍÏ¡ÓÍÈó»¬×°ÖÃ
    XYZ-GÐÍÏ¡ÓÍÕ¾
    XYZ-GZÐÍÕûÌåʽϡÓÍÕ¾
    GXYZÐÍA¸ß£¨µÍ£©Ñ¹Ï¡ÓÍÕ¾
    GXYZÐÍB¸ß£¨µÍ£©Ñ¹Ï¡ÓÍÕ¾
    GDRϵÁиߣ¨µÍ£©Ñ¹Ï¡ÓÍÕ¾
    WBZÐÍÎÔʽ³ÝÂÖÓͱÃ×°ÖÃ
    LBZÐÍÁ¢Ê½³ÝÂÖ±Ã×°ÖÃ
    SPL¡¢DPLÐÍÍøÆ¬Ê½ÓÍÂËÆ÷
    SLQÐÍË«Í²ÍøÊ½¹ýÂËÆ÷
    SWCQË«Í²ÍøÊ½´Åо¹ýÂËÆ÷
    CLQÐʹŹýÂËÆ÷
    YÐÍϵÁйýÂËÆ÷
    GLCQ¡¢GLLQÁйÜʽÀäÈ´Æ÷
    LQϵÁÐÁйÜʽÀäÈ´Æ÷
    LCϵÁÐÁйÜʽÀäÈ´Æ÷
    SGLLÐÍË«ÁªÓÍÀäÈ´Æ÷
    FLÐÍ¿ÕÆøÀäÈ´Æ÷
    KLÐÍ¿ÕÆøÀäÈ´Æ÷
    YZQÐÍÓÍÁ÷ָʾÆ÷
    YXQÐÍÓÍÁ÷·¢Ñ¶Æ÷
    GZQÐ͸øÓÍָʾÆ÷
    AQFÐͰ²È«·§
    DXFÐ͵¥Ïò·§
    LUCÐ;«Ï¸ÂËÓͳµ
  ¸½£ºÒò²úƷĿ¼°æÓÐÏÞ£¬Ðí¶à²úƷδÌí¼Ó±¾Ä¿Â¼£¬Îª´ËÇë¿Í»§À´µç¸æÖª£¬»¶Ó­µ¥Î»Óë¸öÈË»¥ÏཻÁ÷¼¼Êõ£¬Ð»Ð»£¡
<< ÉÏÒ»Ò³  ÏÂÒ»Ò³ >>
XHZ-160¡«XHZ-500µØ»ù³ß´ç
ÐͺÅ
A
B
C
C1
µØ½ÅÂÝ˨d
E
F
H
XHZ-160
3940
1800
1275
1250
M16
1000
1000
140
XHZ-200
XHZ-250
5300
1900
1404
1442
M16
1090
1100
160
XHZ-315
XHZ-400
6200
2100
1532
1536
M16
930
1200
180
XHZ-500
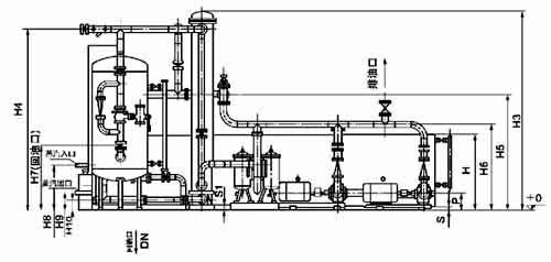
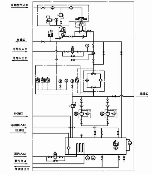
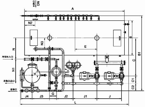
ͼ1-2-7 XHZ-630¡«XZ-2000 ÐÍÔ­Àíͼ
XHZ-630¡«XHZ-2000 ÍâÐγߴç
ÐͺÅ
A
B
B1
C
C1
E
F
G
H
H1
H2
H3
XHZ-630
6500
2180
3890
2100
500
1520
505
860
1700
1470
150
3930
XHZ-800
7000
2360
4550
2580
650
1500
700
800
1800
1470
2350
3255
XHZ-1000
7500
2500
4850
2650
600
1700
820
1250
1900
1470
235
3855
XHZ-1250
8100
2750
5125
2800
5500
1767
750
1266
2100
1790
235
4455
XHZ-1600
8800
3000
5500
3000
700
1750
900
1850
2320
1970
235
3320
XHZ-2000
9700
3080
5600
3200
660
2150
1000
1420
2500
2150
235
3970
 
ÐͺÅ
H4
H5
H6
H7
H8
J
J1
J2
J3
K
L
L1
N
N1
P
S
S1
T
DN
XHZ-630
3482
1644
880
678
2550
1600
2100
1030
1070
570
6730
200
280
790
300
150
100
322
250
XHZ-800
2720
1800
1280
728
300
1600
2100
1130
1470
800
7000
300
300
880
320
30
40
570
250
XHZ-1000
3320
1820
1086
895
300
1850
2420
1900
1150
800
8000
300
350
850
350
55
26
360
300
XHZ-1250
3920
1850
1132
895
300
1966
2160
1333
1227
1000
8300
300
400
1075
350
27
12
427
300
XHZ-1600
3300
2150
1240
915
320
2500
2800
1840
1300
1000
9200
300
400
1100
400
67
120
427
350
XHZ-2000
3375
2240
1252
810
300
2550
3350
1800
1543
1000
9260
300
350
1090
400
32
132
537
400
 
ͼ1-2-7 XHZ-630¡«XZ-2000 ÐÍÔ­Àíͼ
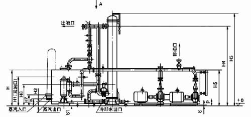
ͼ1-2-8 XHZ-630¡«XHZ-2000 Ð͵ػùͼ
ÐͺÅ
A
B
C
C1
C2
C3
D
D1
µØ½ÅÂÝ˨
d
d1
XHZ-630
6500
2180
1502
1600
580
2100
350
522
M16
M24
XHZ-800
7000
2360
1494
1600
600
2600
600
720
M16
M36
XHZ-1000
7500
2500
1688
1850
720
3050
600
1015
M16
M36
XHZ-1250
8100
2750
1757
1966
1393
2560
600
720
M20
M36
XHZ-1600
8800
3000
1741
2500
1050
3140
600
930
M20
M36
XHZ-2000
9700
3080
2075
2550
1200
3343
650
930
M20
M36
 
ÐͺÅ
E
F
G
H1
H2
J
K
L
N
R
XHZ-630
550
2100
570
15
100
500
350
2850
780
250
XHZ-800
799
2580
640
30
40
500
390
3100
820
400
XHZ-1000
779
2650
585
55
26
550
390
3450
890
340
XHZ-1250
817
2800
680
27
12
620
450
3646
930
400
XHZ-1600
817
3000
815
67
120
660
540
5206
1092
400
XHZ-2000
938
3260
1000
32
133
730
570
4500
1120
450
 
ÐͺÅ
A
B
B1
C
C1
C2
E
F
F1
G
H
H3
H4
H5
H6
H7
H8
XHZ-630A
6500
2180
4660
2380
520
470
1520
400
260
450
1700
3930
3482
2250
1900
1470
678
XHZ-800A
7000
2360
5000
2690
650
260
1500
400
250
630
1800
3255
2720
2300
1900
1470
728
XHZ-1000A
7500
2500
5200
2900
700
1700
170
520
750
1900
3855
3320
2450
2100
1650
800
XHZ-1250A
8100
2750
5650
3350
640
100
2000
300
750
1150
2100
4455
3920
2800
2200
1790
892
XHZ-1600A
8800
3000
5950
3400
700
100
1950
450
650
880
2320
4280
3900
2850
2150
1970
915
XHZ-2000A
9700
3080
6830
3890
870
2400
370
350
1030
2500
5100
4800
3300
2640
2150
1090
 
ÐͺÅ
H9
H10
J
J1
J2
J3
J4
K
N
N1
N2
N3
P
S
S1
L
DN
XHZ-630A
300 150 1550 1550 1130 1110 740 260 1260 1345 280 790 200 15 100 7000 250
XHZ-800A
300 235 1600 1500 1550 18550 760 100 1560 1480 300 880 320 30   7650 250
XHZ-1000A
300 235 1850 1900 1700 1550 900 320 1390 1600 350 850 350 55 26 8200 300
XHZ-1250A
300 235 1800 1800 1800 1950 800 300 1770 1750 340 1075 350 27 100 8750 300
XHZ-1600A
320 235 2100 1950 2000 2200 700 300 1930 1825 400 1100 400 67 120 9950 350
XHZ-2000A
320 235 2370 2170 2200 2200 870 350 2030 2800 420 1090 450 320 133 10300 400
 
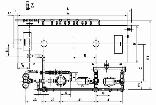
ͼ1-2-11 XHZ-630A¡«XHZ-2000A Ð͵ػùͼ
    ³§¼ÒÍÆ¼ö
  ¹ØÓÚÎÒÃÇ | Ö§¸¶·½Ê½ | ÆóÒµÕÐÆ¸ | ÓÑÇéÁ´½Ó | ÍøÕ¾µØÍ¼ | ¹«Ë¾Î»Öà | ÁªÏµÎÒÃÇ È«¹úͳһÈÈÏߣº13862898483 0513-83902929
  µØÖ·£º½­ËÕÄÏͨÆô¶«Êг¤Áúâù¸£Ô·19ºÅ107ÊÒ ËÕICP±¸11051086ºÅ ¿Í·þ£ºcadlijh@vip.126.com
  Æô¶«»ª¹¤»úе¼¼ÊõÓÐÏÞ¹«Ë¾ÆìÏÂÍøÕ¾£ºÖйúͼֽ½»Ò×Íø ÖйúͼֽÉ̵ê ÖйúͼֽÉ̵êÌÔ±¦µê »ª¹¤»úÐµÍ¼Ö½Íø
  Copyright © 2009 Æô¶«»ª¹¤»úе¼¼ÊõÓÐÏÞ¹«Ë¾ °æÈ¨ËùÓÐ